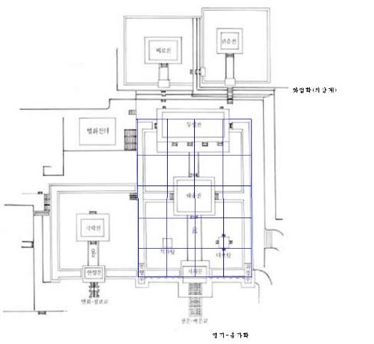
불국사 배치는 분수(分數/지할 地割)가 잘 돼 있기로 유명한 사찰이다. 다보탑과 석가탑 사이 간격의 1/2을 단위 기준으로 하여, 그 일정한 배수로 건축물들을 배열했다.


회랑의 가로와 세로의 전체 너비는 단위 기준의 4배와 5배로 되었으며, 금당의 북벽 중심은 남회랑 너비로 이루어지는 정삼각형의 꼭지 점과 일치한다. 두 탑의 아래층 기단너비는 양 탑 거리의 1/6이며 석가탑의 1층 너비는 금당 너비의 1/10이다. 등등. 그러나 두 탑은 전혀 다른 느낌의 석탑을 세웠다.
왜 그랬을까? 단순히 혁명적 의장성의 추구 뿐일까?
김대성이 경덕왕 10년(751년) 친부모를 위해 불국사를 중건할 때는(초창은 법흥왕 27년이라고 한다) 유식(唯識)학파 사찰로 계획했었는데, 몇 년이 걸려 준공할 즈음에는 화엄학파인 의상의 손제자 신림과 표훈 두 스님이 주석하게 된다. 유식학파는 불(佛), 법, 승 삼보 가운데 법을 중시하는 교학파로서, 사람이 현세에 쌓인 업이 후생에 전달된다고 주장한다. 불을 중시하는 학파는 율종인데, 여러 부족국가가 통일 국가로 가는 과정에서 서로의 가치기준이 달라서 벌어지는 혼란을 훌륭한 전륜성왕(전국시대를 통일하여 평화를 가져다주는 왕 중의 왕, 곧 부처님)의 탄생에 의해 해결할 수 있다고 주장한다. 그러나 인간계는 똑똑한 왕에 의해 영원히 다스려질 수 없으며 결국은(우주의) 법에 의해 다스려져야 한다는 것이 유식학파의 생각이다. 따라서 율종에서는 중앙에 놓이던 탑을 쌍탑으로 나누어 배치하고 법을 상징하는 금당을 절의 중심에 놓는다. 이것이 통일신라와 고려 때 위세를 떨쳤던 유가종(법상종)의 기본틀이며, 통일신라기의 전형적인 3층 석탑도 이들의 이념을 정형화한 것으로서 대표적인 표상이 석가탑이다.
그러나 화엄학의 표훈은 가장 작은 변경으로 유식학파의 사찰을 화엄학파의 사찰로 바꾸어야 했다. 여기서 등장한 아이디어가 동쪽의 석탑을 다보탑으로 변혁하는 것이다. 그리고 전설을 만들어낸다. 석가모니부처님(석가탑)이 전생에 다보여래(다보탑)를 증인으로 비로사나(빛-금당)부처님 앞에서, 다음 생에 부처가 될 것이라고 맹세하는 모습을 상징하고 있다는 것이다. 그러나 비로사나 부처님이 계신 금당의 이름은 대웅전이니, 대웅이란 석가모니의 다른 이름이므로 뭔가 일치하지 않는다. 화엄종의 상징 전각인 비로전은 사역의 맨 뒤 무설전 위에 따로 배치된다. 비로전은 사역 바깥이었으므로 비탈이 심해서, 전각이 높은 계단을 올라가야 하며 그 뒤는 산등이 끝나서 맥을 받지 못한다. 따라서 의상계 화엄에서 가장 좋아하는 밀교계의 관음전은 뒤에 놓일 수가 없고 비로전과 나란히 병치되어 배치될 수밖에 없다. 관음보살이 원래 천의 손에 십일의 얼굴이므로 탑 형식의 정방형이 많지만, 여기서는 가로로 길게 놓기도 의장상 문제가 많았을 것이다. 이 때문에 화엄종에서는 이것이 정형화 되어 관음(원통)전은 거의가 바른네모꼴로 된다.
극락전은 유식학파에서 백성들을 위해 밀교계 사상을 흡수한 사역이다. 본전인 금당보다 한단 낮고 “백성들은 먹는 것이 하늘”이라는 철학을 반영하여, 연화칠보 다리를 건너 올라가 안양문을 들어서면 극락의 세계가 되는 것이다. 하단 신앙이다. 그러나 금당원은 청운, 백운교를 지나 신선들만 산다는 자하문을 지나면 빛(비로자나)이 주관하는 세계에 들어가는 것이다.

여기에 들어가기 위해서는 차안에서 피안으로 건너가야 한다. 따라서 백운교 청운교 아래에는 구품연지가 있었다고 한다.(이것은 1960년대 말 발굴하면서 발견되었다) 이것은 본래 영지(影池)이다. 이곳을 건너가면서 자신의 업(業)을 영지에 비춰본다고 해서 업경(業鏡)이라고도 불린다. 영지는 조선 초까지도 사찰이나 제실 등에서 집의 초입에 많이 조성되던 것인데 조선 중기 이후에는 흘러가는 개울로 이것을 대신하기도 했다.

그러나 화엄학파에서는 이 업경을 중요시하지 않았다. 따라서 표훈은 이것을 메워버렸다. 그랬더니 여기에 비추이던 석가탑의 그림자는 사라지고 말았다. 이후로 석가탑은 무영탑이란 전설을 남겼으며, 이를 조성했던 아비지는 비통 끝에 물속에 빠져 죽고 만다고 현진건은 쓰고 있다. 유가계 사찰에서 화엄계로 바뀔 때의 처절함이 그대로 표현된 전설이라고 본다. 다보탑과 석가탑이 전혀 다른 형상을 하고 있는 것은 다른 이유가 있는 것이 아니고 단순히 종파가 달라졌기 때문이다.

