올해는 추석 무렵에 비가 자주 내려 야외 활동이 다소 위축되었다. 보통 추석 무렵은 일 년 중 건축 공사하기에 가장 좋은 시기로 알려져 있는데 말이다. 특히 목조건축물의 공사 현장에서는 비가 내릴 경우 난감한 상황이 자주 발생한다. 골조 공사 중이라면 빗물을 막기 위해 비닐을 덮어 자재를 보호해야 할까? 아니면 비를 맞은 뒤 충분히 건조하는 것으로 문제가 해결될까?
목조건축을 구성하는 대표적인 구조재를 살펴보면, 경골목구조에서는 ‘스터드(stud)’라 부르는 2인치 규격의 제재목과 OSB 합판이 가장 중요하다. 중목구조에서는 집성목(glulam)이 주로 사용되며, 최근에는 고층 목조건축에 CLT(Cross Lami
nated Timber)가 사용되기 시작했다. 이 모든 목재가 가장 조심해야 하는 요소는 단연코 ‘물’, 즉 수분이다. 그래서 목구조 건축물의 설계에서 수분 관리(Moisture Control)는 가장 중요한 항목으로 꼽힌다.
비 : 외부 수분의 첫 번째 변수
목구조에 영향을 미치는 수분 중 대표적인 것은 ‘비’다. 이 빗물로부터 구조체를 보호하기 위해 대부분의 목조 건축물은 경사지붕을 채택한다. 빗물은 벽체에서도 매우 중요한 변수다. 만약 외장 마감재 틈새로 침투한 빗물이 OSB 합판에 닿는다면 큰 손상이 생길 수 있기 때문이다.
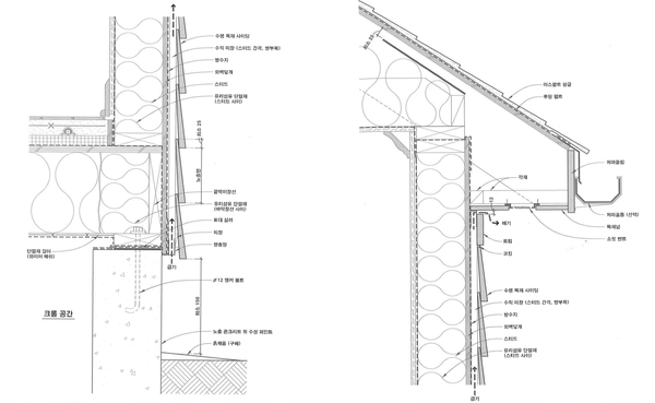
이를 막기 위해 OSB 합판은 전체적으로 ‘투습방수지’로 감싸게 된다. 대표적인 제품으로는 ‘타이벡(Tyvek)’이 있다. 이러한 제품들은 ‘하우스랩(house wrap)’이라고도 부르지만, 이 글에서는 통칭하여 ‘투습방수지’라고 부르겠다. 그러나 구조재에 영향을 주는 수분은 비만이 아니다. 눈에 잘 보이지 않지만 훨씬 더 치명적인 것이 결로(condensation)이다. 결로는 종종 누수(leakage)로 오인되기도 한다.
약 10여 년 전, 경사지붕의 환기 시스템을 제대로 이해하지 못했던 시공사들이 지붕 밴트를 위한 환기구를 만들지 않아 문제가 발생한 적이 있다. 그 결과 해동기에는 결로수가 지붕 안쪽에서 한꺼번에 흘러내리며, 비가 오지 않았음에도 마치 빗물 누수가 생긴 것처럼 보이곤 했다. 비가 오지 않는데도 ‘빗물’이 흐르는 아이러니한 상황이 벌어진 것이다.
‘숨 쉬는 집’ : 수분의 이동을 이해해야
흔히들 목조주택은 ‘숨을 쉰다’고 말한다. 이는 습기가 벽체를 통해 이동한다는 뜻이다. 즉, 내·외부의 습도 차이에 따라 수분이 벽체를 통과해 이동하는 현상이다. 여름철을 예로 들어보면 외부의 상대습도가 75~85%로 높고, 냉방 중인 실내는 50~60% 수준으로 비교적 낮다. 이때 수분은 외부에서 내부로 이동하게 된다.
벽체 외부는 모두 투습방수지로 싸여 있는데, 이 재료는 빗물은 차단하지만 수증기는 통과시킨다. 그런데 이 수증기가 실내의 비닐벽지(일명 실크벽지)에 도달하면 어떻게 될까? 투습이 되지 않는 벽지 표면에서 수분이 축적되어 결국 곰팡이가 생기게 되는 것이다.
겨울철 수분의 이동 : 반대 방향의 위험
반면 겨울철에는 외부 습도(35~45%)와 내부 습도(15~25%) 모두 낮다. 따라서 일반적인 조건에서는 수분 이동이 많지 않다. 그러나 환기가 거의 없고, 실내에서 조리·샤워·호흡으로 수증기가 다량 발생한다면 이야기가 달라진다.
예를 들어, 초기 상대습도가 20%인 상태에서 4인 가족이 생활하며 환기를 거의 하지 않는다면, 불과 6~8시간 만에 실내 습도가 70~85% 수준까지 상승할 수 있다. 이는 한국의 일반적인 생활환경에서도 충분히 일어날 수 있는 현상이다.
이렇게 실내 습도가 높고 외부가 건조한 경우, 수분은 내부에서 외부로 이동한다. 이때 투습방수지를 통과한 수증기가 외장재에서 막히는 구조라면 벽체 내부에 수분이 갇히게 되어 결로와 부패의 원인이 되는 것이다. 따라서 투습방수지와 외장재 사이에는 수분이 빠져나갈 수 있도록 ‘레인스크린(rainscreen)’ 층을 반드시 확보해야 한다.
목조건축에서 수분은 가장 다루기 어려우면서도 가장 중요한 요소이다. 비가 오면 자재를 덮어 보호해야 하고, 젖었다면 충분한 통풍과 일조로 완전 건조한 후 공정을 진행해야 한다. 또한 결로와 같은 보이지 않는 수분 이동을 이해하고, 그에 맞는 기밀층·투습층·통기층 설계를 병행해야 비로소 목조 건축의 내구성과 쾌적성이 확보된다.
